建筑平面图的形成
Formation of Architectural Floor Plans
【Part 01.】
平面图是地图的一种,可以用水平面代替水准面,在这个前提下,可以把测区内的地面景物沿铅垂线方向投影到平面上,按规定的符号和比例缩小而构成的相似图形,称为平面图。

【STEP01】

【STEP02】

【STEP03】
建筑平面图的有关规定
Regulations on Architectural Floor Plans
【Part 02.】
比例:1:50、1:100、1:150、1:200、1:300等
朝向:底层平面图标指北针(其它层平面图上不标朝向)
图线:
• 粗实线——凡是被剖切的主要建筑构造,如承重墙、柱的断面轮廓线,墙、柱断面轮廓线不包括抹灰层的厚度,一般在1:100的平面图中不画抹灰层。
• 中粗线——被剖到的次要建筑构造和未剖到的构配件轮廓线,如窗台、阳台、台阶、楼梯、门的开启方向和散水等。
• 细实线——尺寸线、尺寸界线、图例线、索引符号、标高符号。
• 点画线——中心线、对称线、定位轴线。

定位轴线:
定位轴线是施工中墙身砌筑、柱梁浇筑、构件安装等定位、放线的依据。
规定:主要承重构件,应绘制水平和竖向定位轴线,并编注轴线号;对非承重墙或次要承重构件,编写附加定位轴线。
• 横向定位轴线编号用阿拉伯数字,自左向右顺序编写;
• 纵向轴线编号用拉丁字母(除I、O、Z外),自下而上顺序编写,
• 对于样图上的轴线编号,若该样图同时适用多根定位轴线,则应同时注
明各有关轴线的编号,如下图所示:

平面图上定位轴线的编号,宜标注在图样的下方与左侧。在两轴线之间,有的需要用附加轴线表示,附加轴线用分数编号。
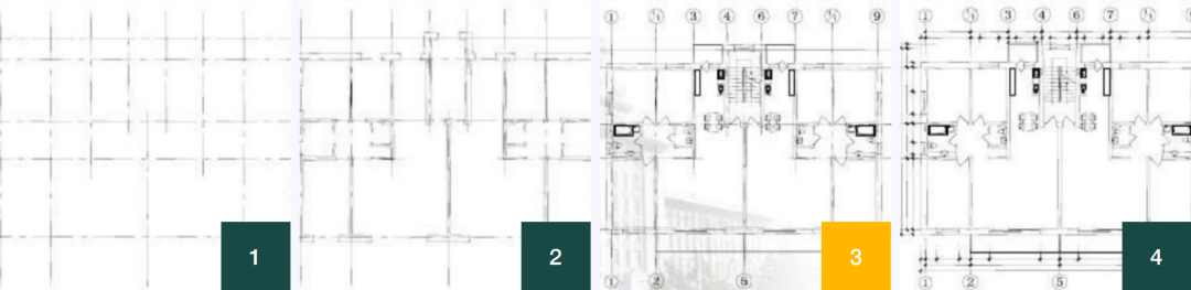
建筑平面图的绘画步骤
The Drawing Steps of Architectural Floor Plan
【Part 03.】

STEP-1:选取比例后,画定位轴线
STEP-2:画出墙柱并确定门窗洞的位置
STEP-3:画出房屋的细部
STEP-4:加深并标注尺寸

常见元素参考
Common Element Reference
【Part 04.】
左右滑动查看更多
常见区域参考
Common Regional References
【Part 05.】
左右滑动查看更多
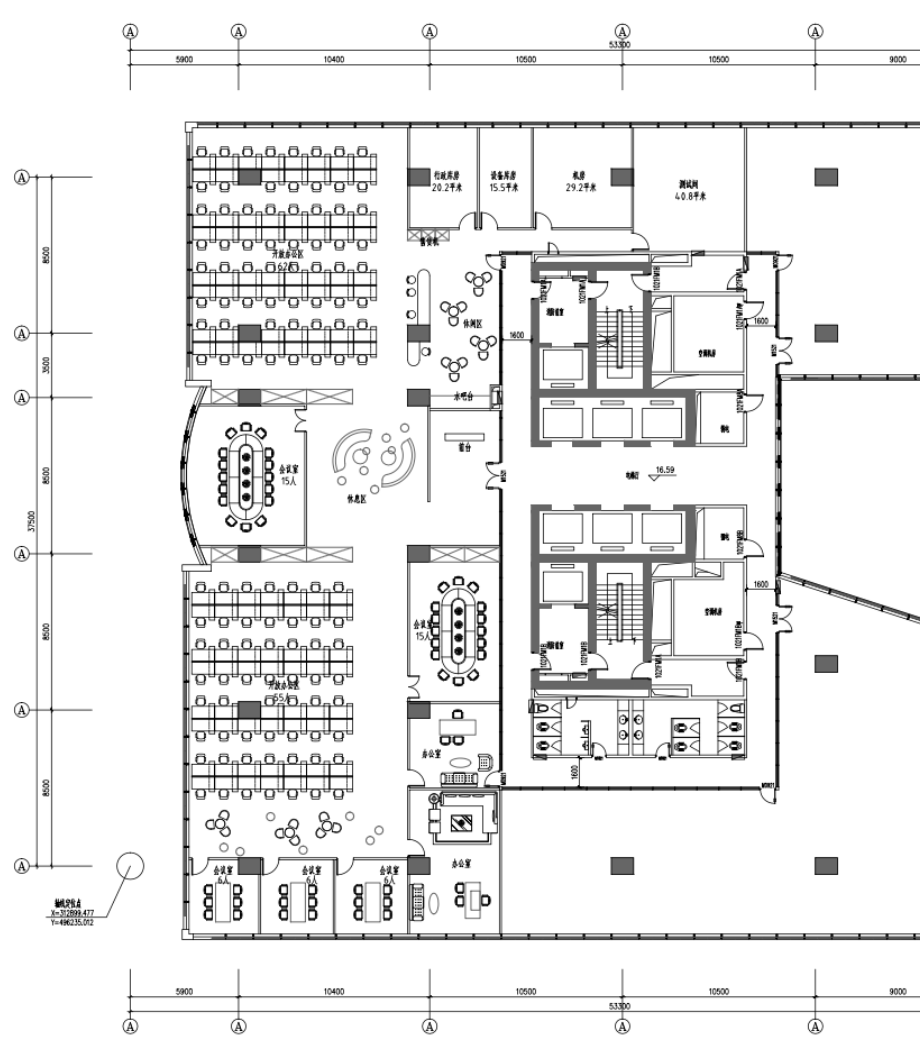
行业平面特点示例
Example of Industry Plane Characteristics
【Part 06.】
互联网科技
开放性与灵活性:采用开放式办公空间,减少固定隔断,通过低隔断或岛式布局划分专注区、共享工位区、协作区和休闲区,便于员工根据任务需求自由切换工作位置;空间设计注重动静分区,设置专门的休息区、娱乐区和茶水间,营造轻松的社交氛围,同时通过声学解决方案(如隔音帷幕、白噪音系统)减少噪音干扰。
个性化与美学平衡:色彩搭配以中性色为主,营造通透感,同时加入活力橙、黄等色彩激发创造力,软装遵循“少而精”原则,提升空间美学格调。通过几何造型、光影设计和品牌元素的融入,展现企业个性与文化内涵。
金融
功能分区明确:通常分为前台接待区、办公区、会议室、贵宾接待室、茶水间等功能区域,各区域布局合理,兼顾效率与隐私需求。
兼顾舒适与高效:设置休息区、健身区、母婴室等配套设施,关注员工身心健康。办公家具采用人体工学设计,提高工作效率。
专业服务
功能分区明确:前台接待区:通常位于入口处,设计简洁大方,兼具展示品牌形象与接待客户的功能;等候区:与前台相邻,提供舒适的座椅和绿植,营造安静、舒适的等待环境;开放式办公区:采用低隔断或开放式布局,促进员工之间的沟通与协作,同时配备充足的自然采光和绿植,提升工作舒适度;独立办公室:为合伙人设置,强调隐私性和专业性,通常位于空间深处或窗边,便于接待客户;会议室:根据规模和需求设置不同大小的会议室,配备智能设备和舒适的座椅,满足会议、谈判等需求;档案室/资料库:用于存放文件等资料,需具备良好的保密性和存储条件。





















